Medical Clinic, Surgical Center: Will Build to Suit
FOR LEASE:
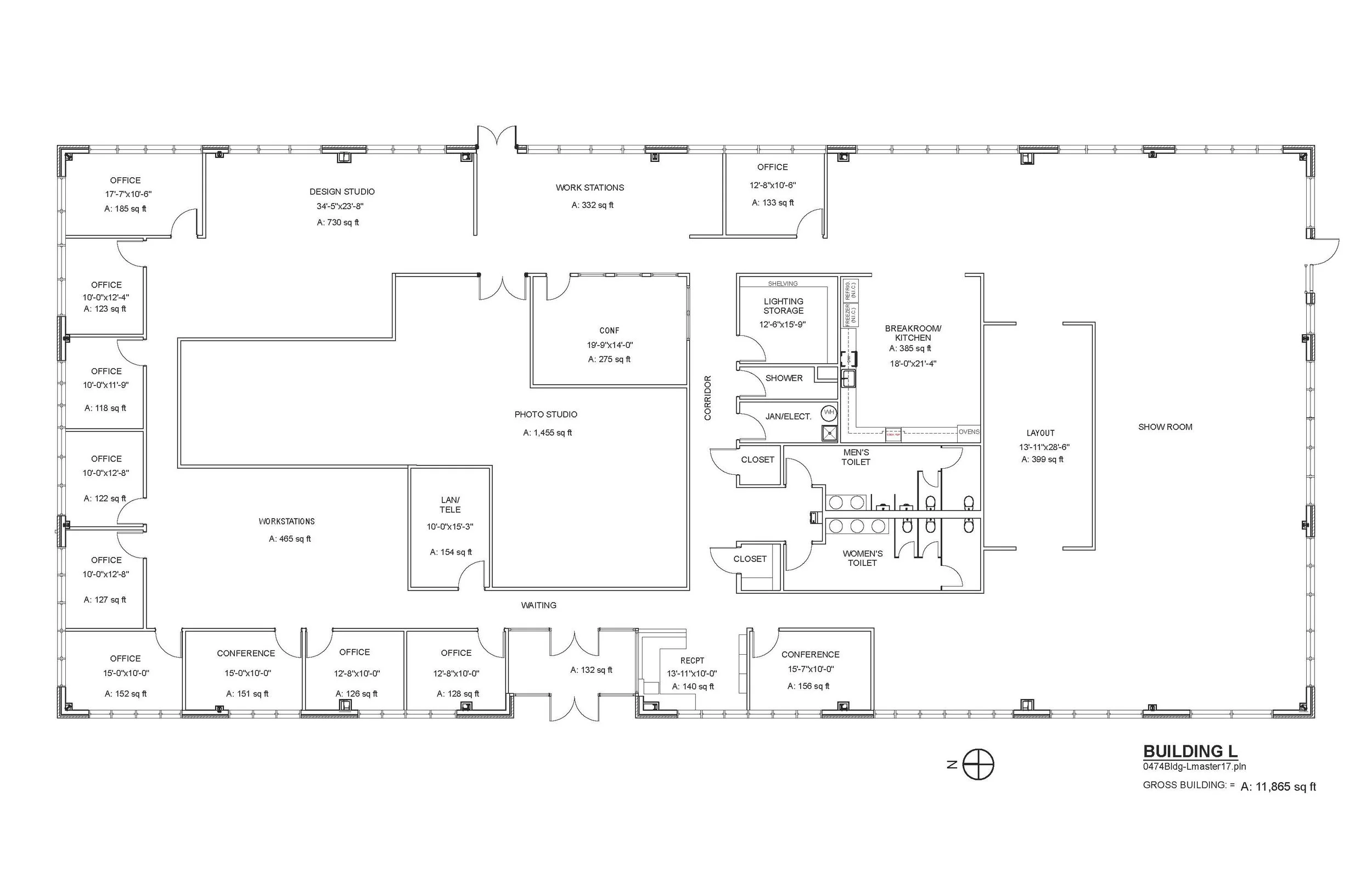
1008 Beau Terre Dr
Bentonville, AR 72712
11,865 SF
Located off I-49
9 private offices, workstations, showroom, conference room, breakroom, restrooms, custom finishes available
Office park amenities
Will build to suit

